Содержание
что это такое, особенности и схема построений, чтение документа
Результатом проведения межевых работ является геодезический план земельного участка.
Он представляет собой подробный чертеж, отображающий рельеф, ситуацию и иные объекты, с обозначением метрических и технических характеристик.
Особым элементом плана являются словные обозначения, позволяющие точно расшифровать представленную на карте надела информацию.
У геодезического плана имеется особенность, отличающая его от иных картографических документов: при чтении чертежа можно легко определить высотную составляющую любой точки.
Помимо этого подобная карта местности позволяет легко определить точные координаты любого нанесенного объекта, а также узнать их реальный размер, рассчитываемый с использованием указанного масштаба.
Содержание
- 1 Чем отличается топографическая карта от плана местности
- 2 Особенности документа
- 3 Геодезический планшет
- 4 Схема геодезических построений в межевом плане
- 5 Чтение чертежей
- 6 Заключение
Чем отличается топографическая карта от плана местности
Планы местности, а также топографические карты являются вариантами географических карт.
Однако подобные чертежи местности не являются идентичными.
Первые представляют собой подробное изображение участка, на котором отражены все, даже исключительно мелкие объекты, то есть он характеризуется детальностью и полнотой. Обычно масштаб плана не превышает 1:10000.
Имеющиеся на местности объекты переносятся на план практически в натуре, их размер легко рассчитывается при помощи линии числового масштаба. При этом изображение не учитывает кривизну земной поверхности.
Искажение при изображении небольших участков незначительно, поэтому показателем можно пренебречь.
Топографические карты также являются уменьшенным изображенным местности, однако обладают собственными особенностями:
- Используется крупный масштаб, не позволяющий в подробностях изображать объекты маленького размера;
- Отображаются линии градусной сетки, учитывающие, в том числе, кривизну земной поверхности;
- Устанавливается особая система условных знаков, отличающаяся от используемой при прорисовке плана местности.
В первую очередь это касается цветовой окраски: на карте цвета используются для отображения высотности, а на плане – для обозначения отдельных объектов рельефа, таких как горы или леса.
Карта используется для общего ознакомления с территорией и имеющимися на ней объектами, тогда как план позволяет более детально изучить небольшой участок земной поверхности.
Особенности документа
Геодезический план земельного участка состоит из двух основных частей: собственно чертежа и вспомогательных данных.
Графическое изображение призвано отобразить следующие элементы местности:
- Рельеф, обычно представленный в виде основных и утолщенных горизонталей. Высоту местности обозначают при помощи цветов, а наиболее высокие и низменные участки, в том числе глубина гидрологических объектов – точками с указанием количества метров над уровнем моря.
- Водные объекты.
Помимо непосредственного изображения, имеющегося на участке ручья, озера или иного гидрологического ресурса, на план наносится его название, а также направление течения. При помощи условных обозначений наносится и его скорость. - Инженерные сети:
- Линии электропередач;
- Газовые трубы;
- Линии связи;
- Иные объекты коммуникацией, расположенные как над землей, так и под
ней.
- Граничные линии, для конкретных земельных наделов – крайние и поворотные точки.
- Дорожные коммуникации.
- Растительность и вид почвы. Конкретизируется при помощи условных знаков.
- Ограждения – любые виды заборов и изгородей.
- Здания, с обозначением количества этажей и принадлежности к жилым или нежилым помещениям.
Помимо изображения участка план местности включает в себя несколько блоков со вспомогательной информацией:
- Основной штамп.
Содержит дополнительные сведения, в том числе адрес земельного надела, масштаб, в котором выполнен чертеж и данные геодезического специалиста, производившего измерения и составившего план; - Математическая часть, представляющая собой четкую привязку изображенного участка местности к системе координат при помощи расставленных на определенном расстоянии крестов;
- Легенда. Составляется, если на территории землевладения присутствуют объекты, для которых не существует общепринятого обозначения.
Чтобы подробно изобразить каждый из указанных объектов кадастровый инженер должен подобрать подходящий масштаб геодезического плана.
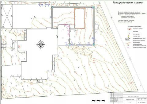
Образец графической части геодезического плана приведен ниже.
Графическая часть геодезического плана
При межевании и проведении строительных работ наиболее часто используются значения 1:1500 или 1:500.
Геодезический планшет
Для фиксации информации, полученной в ходе геодезического исследования местности, кадастровые инженеры используют специальные планшеты.
Они представляют собой ватман, наклеенный на жесткую поверхность, чаще алюминиевую или деревянную.
Приспособление удобно использовать при:
- наземных полевых работах, для обозначения абрисов, нанесения обмера имеющихся на участке построек и для нанесения съемочного обоснования. Для получения точных сведений об объекте геодезист использует специализированные инструменты, в том числе GPS-приборы и тахеометры;
- создании копий уже имеющихся геодезических планов;
- обработке материалов, полученных в ходе проведения землеизмерительных работ, в том числе создание карандашного изображения местности и проведения дополнительных вычислений.
Геодезический планшет на этапе отрисовки плана местности выглядит следующим образом:
Схема геодезических построений в межевом плане
Одним из разделов графической части плана местности, составляемого при межевании участков, является схема геодезических построений. Она отображает результаты, полученные в ходе следующих измерительных работ:
- установления координат съемочного обоснования, то есть составление геодезического основания;
- определение характерных точек граничных линий земельного участка.

Раздел используется при проведении анализа, направленного на поиск ошибок, допущенных инженером при составлении плана.
Необходимость оценки точности возникает при спорных ситуациях, например, при обнаружении пересечения границ соседних участков при проведении межевания или при образовании новых участков.
Чтение чертежей
Для ориентирования на местности, нахождения расположенных на ней объектов и вычисления максимально короткого пути до нужной точки, необходимо уметь правильно читать план.
Для этого нужно знать основные условные знаки, принятые для конкретного масштаба, а также уметь сориентировать карту по сторонам горизонта.
На плане, выполненном в крупном масштабе, стороны света указываются при помощи специальных стрелок.
Правильно определить стороны света на местности, и соотнести план с изображенной на ней территорий поможет компас.
На топографических картах, отображающих значительные участки земной поверхности, север и юг определяется по меридианам, а запад и восток – по параллелям.
Чтобы определить путь к нужной точке, необходимо также умение находить ориентиры и использовать их при построении маршрута, учитывая при этом масштаб карты.
Межевой план, составляемый исключительно для определения границ надела, прочесть достаточно просто. В первую очередь следует ознакомиться с текстовой частью документа, сообщающей основные сведения о землевладении, а затем ознакомиться с легендой чертежа.
Данных сведений будет достаточно для изучения местности по имеющемуся плану.
Заключение
Результаты геодезических исследований, перенесенные на бумагу, позволяют с точностью установить границы выделенных на местности участков, а также определить наличие иных объектов на обозначенной территории.
Дальнейшие изменения территории, такие как прокладка коммуникаций, возведение сооружений, а также регистрация земельного участка производится именно с учетом содержания геодезического плана.
Геодезический план участка — зачем нужен?
Привет друзья, с вами снова на связи блог «построить дом».
В этой статье, как я и обещал в прошлый раз, мы будем с вами обсуждать геодезический план участка и решим, стоит ли проводить топографическую съемку рельефа или все-таки не стоит. Кстати, эта статья в какой-то мере считается продолжением статьи об уровне грунтовых вод, которую можно посмотреть здесь, а также статьи о том какой тип фундамента выбрать для дома. Кроме того является частью составления всего плана строительства дома.
Содержание
- 1 Геодезические исследования участка
- 2 Если вы приобрели загородный участок
- 2.1 Действия на только что приобретенном загородном участке
- 2.2 Геодезический план
- 2.3 Обозначение границ участка
- 2.4 Коммуникационные системы
- 3 Для чего вообще все это нужно?
Геодезические исследования участка
Исследования грунта
Если вы приобрели загородный участок
Большинство владельцев земельных участков считают, что нет особой необходимости проводить на участке геодезические исследования.
Решив, что построить загородный дом на участке со всеми вытекающими и так требует немало денежных вложений. Так зачем же заморачиваться с лишними хлопотами. Но все же, я бы не спешил на их месте делать такие скоропалительные выводы.
Действия на только что приобретенном загородном участке
Основой для проекта дома является геодезическо-топографическая съемка участка. Именно она дает нам возможность грамотно и экономично спроектировать размещение подземных и наземных коммуникаций.
Коммуникации под домом
Геодезический план
Геодезические исследования включают в себя целый комплекс мероприятий: лабораторные исследования грунта, геодезическую съемку подземных коммуникаций (которые пролегают через участок или рядом), топографическую съемку со всесторонним отображением рельефа.
Топографическая съемка дает возможность избавиться от проблем относительно участка, которые возникают в связи оспариванием границ участка.
Обозначение границ участка
Границы участка должны быть четко обозначены во избежание дальнейших споров
Геодезист, используя сверхточные приборы, на местности выявляет все точные координаты земельного участка, основываясь на технический паспорт участка.
Этот же специалист устанавливает столбики-метки, визуально локализующие со всех сторон ваш участок.
Нередки случаи, когда при отсутствии точного плана и физических границ участка, постройки частично либо целиком оказываются на территории, которая принадлежит владельцу соседнего земельного участка. А это приводит к нежелательным разборкам, доходящим до суда.
[su_note note_color=»#5a5c59″ text_color=»#fff»]На заметку: Если ваш земельный участок «выносится в натуру», а у вас на руках кадастровый паспорт, это уже неплохо. Но не забывайте, что во время застройки вам потребуется проект дома. Нужно будет либо подсоединиться к существующим коммуникациям, либо организовать свою. В любом случае вы должны точно знать, где эти коммуникационные системы проходят.[/su_note]
Только после проведения геодезических исследований ваш проект смогут утвердить в местной администрации. Потому что эти исследования дают точную картину, для проектировщика, о перепадах высот земной поверхности и местоположении на участке тех или иных объектов.
А уже он решит, как должен располагаться дом относительно сторон света.
Коммуникационные системы
Кроме этого существуют строительные правила, которые указывают владельцам земельного участка, какое минимальное расстояние допустимо от фундамента жилой постройки до поземных систем коммуникации на участке. Вся эта необходимая информация должна быть внесена в кадастровый паспорт и договор о купле продаже участка.
Еще один немаловажный момент, о котором не стоит забывать владельцам земельных участков: любой участок, даже относительно ровный все равно имеет некий уклон в какую-либо сторону. Чтобы определить в какую именно – выполняется геодезическая съемка. Это даст наибольший эффект для расположения всех необходимых объектов на участке.
Для чего вообще все это нужно?
При возведении дома план участка потребуется и для того, чтобы наметить выгодное и наиболее верное расположение декоративных растений и подсобных пристроек.
А если вы решитесь обратиться за услугами к ландшафтному дизайнеру, то обязаны предварительно составить подробный план рельефа местности. Вот тут-то и понадобятся геодезические исследования и точный план коммуникационных систем участка — для начала любого строительства.
А кроме того, исследования грунта, которые входят в этот план, дадут четкое представление о том, какой тип фундамента нужно выбрать.
Здесь я и закончу свою статью. Зато вы теперь точно знаете, почему владельцам земельных участков просто необходимо делать геодезический план. В следующих статьях мы с вами будем рассуждать о выборе стиля и для дома и для квартиры. Всем пока, до новых статей.
Геодезические планы объектов — ГК «РИТЦ»
Геодезические планы
Геодезический план – это уменьшенное изображение земельного участка, ограниченного сторонами до 20 километров. План представляет собой плоскость, на которой подробно отмечены все значимые объекты и особенности исследуемой местности. При составлении плана сферическая поверхность Земли переносится на горизонтальную плоскость, как правило, методом ортогонального проецирования с уменьшением масштаба до требуемого значения.
Компания ЦМиГ осуществляет услуги по построению геодезических планов в соответствии с законодательными и техническими нормами на участках с любыми параметрами. Вы можете заказать создание геодезического плана в нашем центральном офисе в Калуге или воспользоваться услугами наших представительств в Тульской и Московской областях. В нашем прайс-листе вы найдете полный перечень услуг и ориентировочные расценки. Для уточнения цены обратитесь к нашим специалистам.
Нужно составить геодезический план – приходите к нам!
План, карта или профиль?
План в геодезии – лишь один из видов топографического документирования. Полезно знать, чем он отличается от смежных типов документов.
-
Точный геодезический план не учитывает кривизну земной поверхности, он представляет собой плоскую проекцию. Именно с этим связано пространственное ограничение участка 20х20 км. На этом масштабе кривизной можно пренебречь, что не помешает получить точные координатные метки.
-
Карта – наоборот, отображает значительные площади, вплоть до всей земной поверхности.
При перенесении сферичной поверхности на плоскость неизбежны искажения, поэтому невозможно составить карту с постоянным масштабом. Получить представление об этом легко при зрительном сравнении контуров континентов на карте и на глобусе. -
Профиль – особый документ. Его составляют, когда нужно создать графический образ кривизны земной поверхности в разрезе. Используется для изучения рельефа местности в научных и прикладных задачах.
Каким должен быть идеальный геодезический план
Как и любой инженерный документ, план в геодезии должен соответствовать не только техническим нормативам, но и определенной степень удобства при использовании. Чтобы сделать такой план, необходимо выполнить следующие условия:
-
Обеспечить получение правдоподобия и соответствия в аспекте традиционной географии
-
Привести изображения деталей местности в точное соответствие с рельефом и другими особенностями.
На крупных масштабах точность и детализация должны быть выше -
Необходимо так построить план, чтобы при всей полноте отображенных данных он хорошо и понятно читался
При этом качественно составленный, максимально полный инженерный геодезический план должен отображать:
-
Элементы ситуации местности (объекты и предметы, которые отмечаются в виде специальных знаков)
-
Наличие и плотность застройки
-
Значимые элементы и формы благоустройства
-
Схему коммуникаций – наземных и скрытых
-
Особенности рельефа участка (отображаются с помощью горизонталей)
Для каждой задачи – свой геодезический план
Чтобы построить план под определенные требования, нужно прежде всего выбрать оптимальный масштаб. Распространенные масштабы для плановой документации — 1:10000, 1:5000, 1:2000, 1:1000, 1:500, 1:200..jpg)
Кроме того, планы в геодезии могут быть специализированными либо основными.
Специализированные планы (например, межевые геодезические планы) отличаются содержанием – их составление допускает возможность сделать дополнительные отметки, добавить специальную информацию, чтобы создать более полную картину. Кроме того при создании таких планов возможны корректировки точности контуров в ту или иную сторону.
Правильный выбор метода получения плана не только облегчает его использование, но и позволяет оптимизировать расценки на проведение работ, дает возможность получить точный результат максимально дешево.
Сколько стоит геодезический план?
План в геодезии может решать совершенно разные задачи – от благоустройства загородного участка до крупного промышленного строительства. Соответственно, для каждого случая определяется своя степень сложности.
На практике дешевле всего бывает заказать план для подведения коммуникаций к частному дому.
Более высокая стоимость может быть у работ связанных с топосъеской участка для получения обоснования под строительство. Еще дороже может обойтись построение плана для благоустройства, ландшафтного дизайна. Конечную стоимость определяет и заданная площадь измерений.
Что касается масштабных проектов, измеряемых гектарами, то здесь цена зависит прежде всего от параметров местности. Наиболее высокая сложность и стоимость у работ, связанных с топосъемкой в условиях плотной застройки при необходимости отобразить на плане подземные коммуникации.
Работаем по плану
Вы можете заказать работы по составлению геодезического плана для любых задач в компании ЦМиГ. Наши специалисты обладают уникальным опытом в инженерной геодезии и топографии.
Ознакомьтесь с перечнем услуг в нашем прайсе и обратитесь за точными консультациями в наш офис. Мы готовы выехать на полевые измерения не только в Калужскую область, мы также составляем геодезические планы в Москве, Туле и других городах и областях центра России.
Наше кредо – качество, точность, профессионализм!
Важность проведения топографической съемки перед покупкой земли
Геодезические услуги Филсурв
Геодезические услуги Филсурв
Землеустроитель Филиппины, инженер-геодезист, топограф, геодезист-батиметрист, аэросъемщик, переезд
Опубликовано 7 августа 2017 г.
+ Подписаться
Если вы заинтересованы в покупке недвижимости, просто найти участок или дом, который вам нравится, и сделать предложение — неверный путь. Многие люди упускают из виду важность проведения топографической съемки перед покупкой участка земли, что может выявить множество потенциальных проблем, которых в противном случае можно было бы избежать.
Землеустроитель может определить размеры границ, чтобы убедиться, что участок земли действительно соответствует тому, что вы покупаете. Геодезист может сказать вам, действительно ли деревья, здания, заборы, тротуары, подъездные пути и другие особенности земли находятся на участке, а также не нарушают ли чьи-либо постройки или другие элементы участок, который вы хотите купить.
Геодезист также должен быть знаком со строительными нормами, правилами водно-болотных угодий и зонированием. Земельные изыскания особенно полезны при покупке участка недвижимости, на котором вы надеетесь построить здание, поскольку они могут выявить потенциальные проблемы до того, как вы купите землю. Если вы покупаете гористую землю, землю, которая может считаться водно-болотной, или землю в других районах, на которых может быть трудно строить, геодезист может помочь вам оценить возможности для строительства на этой земле. Если вы планируете застроить землю или разделить ее, обследование может помочь вам определить, возможно ли это или даже законно.
Нецелесообразно полагаться на более раннюю геодезическую съемку, предоставленную нынешним землевладельцем, потому что она может не отражать недавние изменения в земле и фактически может быть неточной. Нанятый вами геодезист может разместить постоянные маркеры на углах вашей собственности, чтобы границы были четкими. Перед проведением геодезии вы можете попросить своего агента по недвижимости предоставить профиль собственности, в котором будет указана информация о собственности, юридическое описание, карта площади, налоговая информация и другие характеристики. Это отличное место для начала при оценке потенциальной покупки недвижимости. По крайней мере, часть этой информации также может быть доступна в Интернете. Обязательно посетите участок и пройдитесь по всему участку, даже если он занимает несколько акров, чтобы своими глазами увидеть, как он выглядит.
Проведение топографической съемки до того, как земля перейдет к другому владельцу, — это просто комплексная проверка.
Не полагайтесь на чье-либо слово, например, землевладельца или агента по недвижимости, при покупке земли. Это большая покупка, и ее не следует делать, если вы точно не знаете, что покупаете. Если вы не можете получить топографическую съемку до того, как сделаете официальное предложение, по крайней мере сделайте ее до закрытия сделки. Геодезист предоставит вам наилучшую возможную информацию, чтобы определить, соответствует ли объект недвижимости вашим потребностям. Если возникают какие-либо тревожные флажки, убедитесь, что они устранены к вашему удовлетворению, прежде чем закрыть объект.
Вы же не хотите совершить ошибку, купив землю, которая вам не нужна, или купив землю, которая не соответствует вашим представлениям. Хотя особенно важно провести топографическую съемку, когда вы покупаете большие площади или планируете застройку земли, топографическая съемка даже небольшого участка с домом может выявить потенциальные проблемы, пока не стало слишком поздно.
Геодезическое оборудование (краткая история)
2 сентября 2017 г.

Использование RTK для разбивки конструкции
2 сентября 2017 г.
Съемка и растительность
7 августа 2017 г.
Причины обследовать вашу землю
30 июня 2017 г.
Покупка подходящего земельного участка
30 июня 2017 г.

Как геодезисты и инженеры работают вместе
1 июня 2017 г.
Топографическая съемка земельного участка и этапы ее выполнения. Как проводится топографическая съемка? Топографическая съемка земельного участка под газификацию Топографическая съемка земельного участка как сделать своими руками
В соответствии с поставленными задачами, для получения максимально достоверной информации о сайте. Геодезические работы (в первую очередь геодезические) могут быть использованы для, а также — при проведении строительных и архитектурных работ .
Только после проведения геодезических работ при межевании допускается производить необходимые расчеты и согласовывать фактическое местонахождение объекта хранения.
Работа ведется на основании норм Федерального закона 122-ФЗ, а также — на основе стандартов:
- СП 11-106-97;
- Приказ Минэкономразвития России об утверждении типов ориентиров № 585 от 31 декабря 2009 г.;
- Приказ Минэкономразвития России (Требования) от 17.08.12
Проводится специалистами геодезической компании в сопровождении кадастрового инженера, от которого получают техническое задание, и которому передают полученную информацию.
Что такое земельно-кадастровая съемка?
Кадастровая съемка земельного участка — вид кадастровой деятельности, заключающийся в получении данных от геодезистов, их последующей обработке и передаче полученных и обработанных сведений в Государственный кадастр недвижимости (ГКН).
Эта концепция должна применяться к полному процессу, состоящему из трех этапов:
- предварительное планирование;
- геодезические работы на местности;
- камерная работа.
Соответственно, геодезические изыскания являются лишь частью предусмотренной кадастровой деятельности.
. Но учитывая совокупность их значения, термин кадастровая съемка может употребляться в том же контексте, несмотря на расширяющиеся функции приложения.
Зачем нужны геонауки?
При составлении межевого плана без геосъемки не обойтись. Обычно заказывают в чехлах:
- установка памяти на;
- регистрация конфигурации и определение площади ЗУ — при нарезке земли;
- при планировании имущественной сделки с землей;
- при разделе участка;
- при слиянии участков;
Эти и другие ситуации основаны на информации, полученной в результате геодезических работ. Кроме указанного, при оформлении требуется геосъемка — для формирования зон застройки. Инструкцию по заполнению ГПЗУ вы можете посмотреть в другом . Никакие виды измерительных работ не являются альтернативой в таких ситуациях.
Где они это делают?
Вам следует обратиться в геодезическую компанию по месту нахождения объекта. Требуется выявить наличие лицензии на обозначенный вид работ.
Такие компании выполняют работы, связанные с землей: кадастровый учет, межевание, геодезия.
Если данный вид услуг недоступен в населенном пункте, вы можете обратиться в отдел кадастра и картографии , подав заявку на обследование.
Цена
Цена услуг зависит от региона и сервисной компании . Также может влиять категория памяти и ее целевое назначение.
Если геодезические работы оцениваются отдельно от кадастровых, то стоимость обычно зависит от количества вбитых колышков. Если они оцениваются вместе с подготовительными и камеральными видами работ, сумма может быть фиксированной.
Например, в Санкт-Петербурге и Ленинградской области, в Москве и Московской области наиболее бюджетными являются следующие цены:
- 4 разворота — от 1,5 тыс. руб.;
- 5-10 баллов — от 1 тыс. руб.;
- 11 и более — от 800 руб.
Как правило, соответствующие существенные услуги могут не включаться в эту стоимость.
:
- Представление ориентиров с бирками или табличками, которые можно заменить обычными временными колышками.
- Составление и удостоверение акта передачи памятников.
- Передача владельцу плана хранения (см.), выполненного на бумаге.
Кадастровые компании, работающие в большинстве регионов, устанавливают примерно одинаковые цены. Например, самая актуальная стоимость от 500 рублей до 1 тысячи. Если точек много, используются индивидуальные расчеты.
При организации геодезического обеспечения строительства каждый балл оценивается в размере 1 тыс. руб.
В центральной полосе РФ практикуется ежедневное геодезическое сопровождение строительства, оплата от 3 тыс. руб. в день.
Вместе с кадастровыми работами геодезические услуги ограничены фиксированной стоимостью, основанной на четырех точках поворота. Если их больше, применяются индивидуальные методы оценки.
Что входит в геодезические работы?
Из различных видов геодезических работ наиболее распространены:
- ландшафтные исследования;
- определение места прохождения краевых границ ЗУ;
- съемка расположения инженерных коммуникаций;
- фотосъемка строительных объектов.

На рынке геодезических услуг с 2000 года. Наши специалисты качественно и быстро выполнят инженерно-геодезические изыскания для составления топографического плана земельного участка любого масштаба. Если у вас есть вопросы по составлению технического задания, или стоимости наших услуг, звоните нам и мы поможем вам сориентироваться.
Топографическая съемка, иногда называемая геобазой, необходима не только для проектирования строительства зданий и сооружений, но и для экономического обоснования инвестиций в строительство, для прокладки коммуникаций, для создания генерального плана развития территории , для вертикальной планировки.
Инженерно-геодезические изыскания в строительстве являются необходимой частью предпроектных работ, а топографическая съемка для строительной площадки приравнивается к свидетельству о рождении человека. В результате топографической съемки выясняется.
Что такое топографическая съемка земельного участка?
Существует множество определений этого процесса.
Но в этих определениях часто теряется суть сказанного, потому что они апеллируют к техническим терминам на том же техническом языке. Проще говоря, топографическая съемка представляет собой сочетание полевых замеров местности и их камеральной обработки. По результатам этих работ также составляется ЦТМ (цифровая модель местности). В зависимости от вида и масштаба назначение топографической съемки весьма разнообразно.
Зачем нужна топографическая съемка?
Основной целью топографической съемки является получение исходных данных об участке для последующего проектирования в целях строительства или благоустройства. Исходные данные относятся к составлению инженерно-топографического плана с указанием всех коммуникаций и значимых наземных сооружений. Иногда используется в кадастровых целях при постановке на учет участков и строений и получении. Обо всем этом написана целая статья.
Виды топографической съемки
Топографическая съемка местности при инженерно-геодезических изысканиях подразделяется на большое количество видов.
Они работают с различными приборами и техниками. Их различия определяются точностью, сферой использования и уместностью использования. Ниже мы просто перечислим разновидности. Вы можете узнать о них больше.
— теодолитная съемка
— тахеометр съемка
— масштабная съемка
— leveling
— ground phototopographic survey
— stereotopographic or aerial photography
— combined aerial photography
— satellite imagery
— laser scanning
Topographic масштабы съемки
Одной из важнейших характеристик топографической съемки является ее масштаб. Чем крупнее масштаб, тем детальнее будет отображаться рельеф и обстановка на объекте. Самые популярные масштабы 1:5000-1:100. У каждого свои допуски и точность определения местоположения объектов. Цели работы тоже разные. Если для съемки прецизионных (высокоточных) сооружений используется масштаб 1:100, то масштаб 1:5000 скорее станет обзорной картой местности.
Более подробную информацию о шкале можно найти.
Порядок проведения топографо-геодезических работ
Топографо-геодезические работы (инженерно-геодезические изыскания) подразделяются на три основных этапа выполнения:
Подготовительный этап:
1. Подготовка Заказчиком Технического задания на выполнение геодезических изысканий. Достаточно заполнить данные об объекте в форме заявки, и наши специалисты уже подготовят и согласуют с вами Техническое задание и договорную документацию на выполнение работ. Для физических лиц техническое задание не требуется.
2. Получение разрешения (регистрации) на производство топографо-геодезических работ в местном Управлении архитектуры и градостроительства. В Москве разрешение получено от ГУП «Мосгоргеотрест». Для физических лиц разрешение не предоставляется.
3. Сбор и анализ материалов и данных по заданной территории, получение данных о прохождении подземных коммуникаций через объект, получение координат и высот геодезических пунктов.
4. Составление программы топографо-геодезических работ с учетом требований технического задания Заказчика. Для физических лиц программа работы не составляется.
Полевой этап:
1. Рекогносцировка и съемка района работ
2. Выполнение комплекса топографо-геодезических работ (создание опорной геодезической сети, топосъемка, полевой контроль замеров)
Сцена камеры:
1. Обработка полевых материалов, оценка точности полевых измерений
2. Создание цифровой модели местности
3. Составление топографического плана, прорисовка подземных коммуникаций
4. Согласование полноты и правильности прокладки подземных коммуникаций с эксплуатирующими организациями и уточнение топографического плана. Люди обычно договариваются сами.
5. Сдача 1 экз. акта и топографического плана в архив местного Управления архитектуры или ГУП «Мосгоргеотрест».
6. Передача Заказчику технического отчета о проведенных геодезических изысканиях на объекте, оригиналов топографических планов с печатями эксплуатирующих организаций и цифровой модели местности в формате DWG.
Особи получают только топоплан.
Результат топографической съемки
Что в итоге получает заказчик? Здесь все же необходимо разделить топосъемку на юридическое и физическое лицо.
Для юридического лица в результате выполненных инженерно-геодезических и изыскательских работ формируется подробный документально-технический отчет, содержащий схемы плановых и высотных геодезических сетей, полевые измерения, корректировки и оценки точности, каталоги координат и высот в необходимых системах координат эскизы для каждой точки с описанием ее типа и расположения на местности. Копия отчета с приложением необходимого количества экземпляров инженерно-топографического плана (с нанесенными подземными коммуникациями при необходимости) и цифровой модели местности в электронном виде (формат DWG). Полевой контроль и приемка материалов геодезических работ специалистами Заказчика обязательны. Один экземпляр технического отчета согласовывается и представляется в местный орган архитектуры и градостроительства.
Для отдельных все гораздо проще. Под физическим лицом понимается собственник частного земельного участка, являющегося объектом обследования. Подготовка и согласование отчета по архитектуре занимает много времени и денег, что зачастую не имеет смысла. По сути, Заказчику не нужен отчет — ему нужен основной «продукт» — на бумажном и цифровом носителях. Это то, что требуют ландшафтные дизайнеры, газо-, водоснабжение и другие службы. Кроме самого топографического плана часто требуется копия от подрядчика. То есть в результате топографической съемки вам будет выдан топографический план и сертификат.
Чтобы получить план части местности, выполните топографическую съемку. На приведенной ниже карте-образце показаны обозначения объектов, рельеф и контуры территории. Такой документ может быть использован для создания других различных схем, планов и т.д.
Режим
Земельный участок может быть выполнен в цифровом или аналоговом режиме. Выбор зависит от способа хранения и предоставления информации заказчику.
Аналоговый режим предполагает выдачу материалов (топографических планов или карт) на бумажном носителе.
Цифровой режим в настоящее время считается предпочтительным. При этом вся информация, полученная при топографической съемке земельного участка, сохраняется на магнитных носителях, дисках, флешках и т.п.
Техника сбора данных
По этому признаку она подразделяется на:
- Наземная.
- Аэрофотосъемка.
- Комбинированный.
Первый осуществляется прямо с земли. Наземная топографическая съемка земельных участков подразделяется на несколько видов в зависимости от применяемой технологии. Она может быть:
- Мензульная.
- Тахеометрический.
- вертикальный.
- Теодолит (горизонтальный).
- Фототеодолит.
Стрельба по чешуе
При выполнении рисуется на земле. В результате полученная карта имеет высокое качество. Однако это связано с большим объемом полевых работ.
Их эффективность зависит от погоды. Соответственно, производительность труда в этом случае достаточно низкая. В настоящее время масштабный метод практически не используется.
Тахеометрическая съемка
Вы можете использовать этот метод независимо от погодных условий. Информация об измерениях собирается на земле. Карта (план) составляется в офисных условиях (в помещении).
Одним из преимуществ данного метода является возможность автоматизации процесса сбора и дальнейшей обработки полученных данных. Это достигается за счет использования современных электронных устройств.
Фототеодолитная съемка
При ее выполнении производится фотографирование местности с двух базовых точек. Им называют расстояние, измеренное с высокой точностью, концы которого закреплены на земле центрами. Фотосъемка осуществляется при параллельном расположении оптических осей аппаратуры.
Изображения, полученные во время процедуры, позволяют создать стереоскопическую модель области.
Для этого используются специальные приспособления. С их помощью можно получить топографический план (карту) на основе координат точек установки камер, определенных геодезическими измерениями, высоты, на которой расположен центр объектива, и других параметров внешнего ориентирования.
аэрофотосъемка
Считается основным методом государственного картографирования местности. Аэрофотосъемка осуществляется, как правило, стереотопографическим методом.
Местность фотографируется аэрофотокамерой с вертолета или самолета. Задача процесса – получить два соседних изображения одной области – стереоизображения. Их обработка и прорисовка карты осуществляется на стереоаппаратах в офисных условиях.
Обобщенная схема выполнения
Конкретная составляется с учетом ее вида и способа, используемых инструментов, масштаба карты и других факторов. Между тем, не вдаваясь в подробности того или иного метода, можно составить обобщенную схему выполнения обследования.
Он может включать следующие шаги:
- Составление технического задания.
- Сбор данных о ранее выполненных топографо-геодезических работах на местности.
- Выбор метода съемки.
- Создание опорной сети (если ее нет на земле).
- Стрельба.
- Обработка материалов.
- Создание модели.
- Распечатка карты.
Пленка сети необходима для уплотнения локальных и государственных сетей до определенной плотности. Его нормы зависят от вида стрельбы и регламентируются инструкциями и другими отраслевыми актами.
Проектирование
Отправной точкой для него является задание на проведение топографической съемки. Его выдает заказчик. В задании указано:
- Местоположение объекта и его площадь.
- Масштаб карты (план).
- Срок окончания работ.
В задании могут быть сформулированы существенные, по мнению заказчика, требования к точности и полноте изображения элементов объекта.
Выбор съемки
Зависит от площади объекта, масштаба карты, возможностей художника и других факторов. Если по результатам предварительного анализа объекта выясняется, что топографическую съемку можно выполнить разными способами, предпочтение отдается наиболее дешевому.
По окончании этапа проектирования составляется смета, обсуждаются вопросы организации работ и техники безопасности.
Земельный участок под газификацию
Представляет собой комплекс работ, направленных на создание карты местности для последующего проектирования и При проведении такой топографической съемки необходимо соблюдение определенных условий:
- Карта составлена в масштабе 1:500. При этом на нем должно присутствовать все и конструкции. Карта согласовывается с предприятиями, эксплуатирующими эти объекты.
- На плане должны быть указаны существующие газопроводы и их характеристики.
- Топографическая съемка должна быть согласована с обслуживающей газовой компанией (например, в Москве это Мособлгаз).
Первоначальный план проштампован инженером. - Чертежи должны сопровождаться ситуационным планом расположения объекта.
Стоимость процедуры
Цена топографической съемки формируется из двух показателей — стоимость самих работ и оплата за согласование.
Стоимость съемки зависит от площади участка и прилегающей территории, которую необходимо снять для создания проекта газопровода от дома до участка врезки в магистральный.
Если брать средний надел в Московской области, то цена топографической съемки будет не менее 10 тыс. руб. Для крупных заказчиков, проектных компаний, а также при групповых заказах могут быть предоставлены скидки.
Согласование оплачивается отдельно, согласно выставленному счету. Заказчик может перечислить средства сам или доверить это фирме, выполняющей топографическую съемку. В первом случае он сможет сэкономить деньги, но потеряет время.
Знаки по топографической съёмке
Это специальные знаки, с помощью которых объекты, расположенные на местности, отображаются на карте.
Основные масштабы планов: 1:5000, 1:2000, 1:500 и 1:1000. Обозначения, как и шкала, регламентируются нормативными документами, в том числе постановлениями правительства.
В соответствии с ГОСТ обозначения на топографической съемке подразделяются на:
- линейные;
- площадь;
- пояснительная;
- специальный;
- зашкаливает.
Назначение
Обозначения, предусмотренные нормами, помогают «читать» площадь. На основе данных обследования создаются новые проекты с использованием символов.
Топографические карты отличаются от обычных географических карт своей универсальностью. Топографические карты указывают не только на объективные характеристики рельефа, но и на состав растительности, производственных, промышленных объектов, инженерно-технических коммуникаций, расположение населенных пунктов.
Обозначение инженерных сетей
Они считаются обязательными. На топографическом плане показаны:
- телефонные сети;
- водопроводы и газопроводы;
- прочие коммуникации.

Обозначение сетей выполняется линейным способом: пунктирными или прямыми сплошными линиями. Толщина у них разная. Например:
- Наземные эксплуатационные коммуникации и трубопроводы отображаются сплошной прямой линией толщиной 0,3 мм.
- Проектные, недействующие, поврежденные наземные сети обозначаются пунктирной линией толщиной 0,2 мм.
На пересечении коммуникаций с другими объектами у каркаса (через каждые пять сантиметров) в линию интегрирована буква, характеризующая транспортируемое сырье (трубопроводное или сетевое изделие):
- Буква Г указывает на то, что газ транспортируется по сеть. Газопровод может быть обозначен на карте сплошной линией (если он находится над землей) или пунктирной линией (если он находится под землей).
- B — сантехника.
- Т — теплотрасса.
- К — канализация.
- Н — нефтепровод.
Часто на топографических планах указывают давление в сети, толщину труб и материал, из которого они изготовлены, напряжение в ЛЭП и количество проводов.
В этом случае к первой прописной букве добавляется пояснительная буква меньшего регистра или цифра. Например, обозначение «Кл» — это ливневая канализация, а «Кб» — бытовая канализация.
Топографическая съемка земельного участка проводится для создания карты или плана местности с указанием геодезических пунктов. В результате работы вы получите точную информацию о рельефе, расстояниях, высотах и углах, этот документ называется топографическим планом. Если вам необходимо произвести топографическую съемку земельного участка, предлагаем заказать наши услуги. Работы будут выполнять профессиональные геодезисты с опытом работы более 10 лет.
Когда уместна топографическая съемка?
К нам обращаются в случаях, когда необходимо получить разрешение на строительство, при планировании раздела земли, актуален данный вопрос при проведении перепланировки и при разметке границ владений, межевании. Услуга также представляет интерес для клиентов, которые хотят установить или изменить системы связи.
Как проводится межевание?
Наши специалисты выполняют топографическую съемку земельного участка в течение 10 дней. Весь процесс топографической съемки можно разделить на два основных этапа — полевой и камеральный.
Полевой этап: В течение трех дней наши геодезисты готовы выехать на объект для проведения замеров в удобное для Вас время. Перед выездом составляется техническое задание, при необходимости получается разрешение на выполнение работ. Запрошена информация о коммуникациях на объекте. Собранная информация анализируется. Далее проводятся геодезические работы.
Стадия камеры: В течение семи дней происходит обработка полученных данных топосъемки, создается цифровая модель местности. Результатом камеральной стадии является подготовка топографического плана и, при необходимости, написание технического отчета.
Также может потребоваться одобрение опроса. В данном случае это подтверждение правильности нанесения коммуникаций на топографический план.
Согласование потребует дополнительного времени, которое зависит от количества организаций — держателей инженерных сетей, расположенных на данном участке.
| Стоимость работ: | |||||
| Приусадебный земельный участок от 1 до 100 соток | Большой участок | ||||
| 10 — 14 т.р. | Масштаб | Га | Поле | Лес | промзона |
| 1: 200 | 1-10 га | 16,5-44 т.р. | 26,4-70,4 т.р. | 28,05-74,8 т.р. | |
| 10-50 га | 44-154 т.р. | 70,4-246,4 т.р. | 74,8-261,8 т.р. | ||
| 50-100 га | 154-291,5 т.р. | 246,4-466,4 т.р. | 261,8-495,55 т.р. | ||
| 1:500 | 1-10 га | 15-40 т.р. | 24-64 т.р. | 25,5-68 т.р. | |
| 10-50 га | 40-140 т. р. | 64-224 т.р. | 68-238 т.р. | ||
| 50-100 га | 140-265 т.р. | 224-424 т.р. | 238-450,5 т.р. | ||
| 1: 1000 1:2000 | 1-10 га | 13,5-36 т.р. | 21,6-50,4 т.р. | 22,95-53,55 т.р. | |
| 10-50 га | 36-121,5 т.р. | 50,4-194,4 т.р. | 53,55-206,55 т.р. | ||
| 50-100 га | 121,5-238,5 т.р. | 194,4-381,6 т.р. | 206,55-405,45 т.р. | ||
| Дополнительные расходы: | |||||
| Расстояние от МКАД | 0-20 км | 20-60 км | 60-120 км | ||
| 0 руб. | 500 руб. | 1000 руб. | |||
Взаимодействие с эксплуатирующими организациями: МОЭСК; Газовая служба; Ростелеком; Воентелеком; тепловые сети; Водоканал, пр.![]() | 10 т.р. Каждая услуга, не считая стоимости госпошлины и официальных платежей | ||||
Что вы получите от топографической съемки участка земли?
Юридические лица: основной документ, который вы получите при обращении к нам – технический отчет о съемке. Он будет осуществляться в строгом соответствии с принятыми стандартами. Мы также предоставим вам техническое задание, разрешение на работу и лист согласования. Вы получите бумажные и электронные документы в любом формате: doc, pdf и AutoCad. Мы работаем с цифровой моделью местности, а также можем предоставить формат dwg.
Физические лица: топографическая карта местности в цифровом виде и на бумаге. Мы также предоставим вам копию свидетельства о допущении нашей компании к топографическим работам.
3 причины выбрать нашу компанию
1. Скорость и точность топографических работ за счет использования современных программ съемки с квадрокоптера, точность полученных данных гарантируем.
2. Мы используем швейцарское оборудование Leica, которое является эталоном точности.
3. Качество топографической съемки проверяется в обязательном порядке, при обнаружении ошибок потраченные деньги возвращаются клиенту.
Геодезические работы включают в себя следующие услуги:
- разработка и утверждение технических условий;
- анализ ранее проведенного обследования сайта;
- получение разрешения на работу;
- полевые работы на местности;
- анализ данных и отчетность.
ВИДЫ ОБСЛЕДОВАНИЙ | philsurvfinal
Выбор типа опроса осуществляется в зависимости от целей и задач, для которых будет использоваться опрос.
В СТ существует множество видов топографической съемки. Тип опроса предназначен для классификации этих критериев. При составлении карты вид съемки должен быть указан в названии карты и, для отражения объема работ, может быть уточнен в примечаниях к карте.
Все опросы подготовлены в строгом соответствии с Общим уставом штата Коннектикут, разд. 20-300b, который регулирует работу землемеров в штате Коннектикут.
Недвижимость/Границы и ограниченная собственность/Изучение границ
Обследование собственности/границы и ограниченной собственности/границы требует достаточного исследования, изучения, полевых измерений и оценки факторов, влияющих на границы, интересы недвижимого имущества и другие соответствующие вопросы в отношении рассматриваемой недвижимости, чтобы геодезист мог сделать вывод. профессиональное мнение относительно пограничных местоположений и любых конфликтов с ними. Эти исследования требуют подготовки подробного полевого исследования и предназначены для представления мнения геодезиста о собственности / границах. Признано, что некоторые факторы, относящиеся к определению границы, не входят в компетенцию геодезиста и могут потребовать соглашений между соседними владельцами собственности или действий судов.
Факты, связанные с такими обстоятельствами, должны быть отмечены.
Типы обследования собственности/границы
Обследование имущества
Обследование имущества – это вид обследования, в котором указывается или отмечается положение границ относительно:
3
местоположений всех пограничных монументов найдено или установлено
видимых улучшений и особенностей, включая как минимум: жилые дома, амбары, гаражи, сараи, подъездные пути, дороги, наземные коммуникации, видимые водоемы и бассейны
регистрировать сервитуты и видимые доказательства их использования
запись и видимые средства входа и выхода
линии оккупации, включая как минимум: заборы, стены, живые изгороди и дворы
документальные ограничения, касающиеся расположения зданий или других очевидных улучшений
неразрешенных конфликтов с описаниями документов и картами
все явные нарушения границ
Монументы должны быть установлены на всех углах, образованных углом отклонения не менее 70 градусов между двумя последовательными курсами, и с интервалами, не превышающими 600 футов (180 метров) вдоль границ между указанными углами, за исключением случаев, когда естественные или искусственные монументация определяет или занимает линию.
Обратитесь к разделу 20-300b-14 этих правил для описания приемлемых памятников. За исключением случаев, когда они предназначены для использования в приложениях, связанных с подразделением или повторным подразделением, это требование может быть отменено только по письменному соглашению между геодезистом и клиентом и с пометкой на карте, что все найденные или установленные памятники были изображены.
Съемка периметра
Съемка периметра – это вид съемки, при котором наносится на карту полоса вдоль границ, минимальная ширина которой должна составлять 15 футов (5 метров), ориентированная на 10 футов (3 метра) в пределах и 5 футов (2 метра) за пределы участка. Целью этого типа съемки является документирование местоположения границ путем изображения и указания их положения относительно:
местоположений всех пограничных монументов найдено или установлено
видимые улучшения и особенности, включая как минимум: жилые дома, амбары, гаражи, навесы, подъездные пути, дороги, наземные коммуникации, видимые водоемы и бассейны
регистрировать сервитуты и видимые доказательства их использования
запись и видимые средства входа и выхода
линии оккупации, включая как минимум: заборы, стены, живые изгороди и дворы
неразрешенные конфликты с существующими описаниями документов и картами
документальные ограничения, касающиеся расположения зданий или других очевидных улучшений
явные нарушения границ
Монументы должны быть установлены на всех углах, образованных углом отклонения не менее 70 градусов между двумя последовательными курсами, и с интервалами, не превышающими 600 футов (180 метров) вдоль границ между указанными углами, за исключением случаев, когда естественные или искусственные монументация определяет или занимает линию.
Обратитесь к разделу 20-300b-14 для описания приемлемых памятников. От этого требования можно отказаться только по письменному соглашению между геодезистом и заказчиком и с отметкой на карте, что все найденные или установленные памятники изображены.
Ограниченная съемка собственности/границы
, запишите линии сервитута и соответствующие муниципальные требования и ограничения. Никаких других улучшений или функций изображать не нужно.
Исследование местоположения
Обследование местоположения зонирования — это тип обследования, в котором указывается или отмечается положение существующих или предлагаемых улучшений по отношению к применимым муниципальным требованиям. Целью этого типа опроса является определение соответствия указанным требованиям. Должны быть изображены только те части собственности, которые имеют отношение к рассматриваемым вопросам.
Никаких других улучшений или функций изображать не нужно.
Исследование местонахождения улучшений
Обследование местоположения улучшений — это тип обследования, в котором отображается или отмечается положение по горизонтали и, при необходимости, по вертикали между конкретными существующими или предлагаемыми улучшениями в отношении применимых муниципальных или законодательных требований. Целью этого вида освидетельствования является обеспечение возможности определения соответствия указанным требованиям. Никаких других улучшений или функций изображать не нужно.
Карта подразделения или повторного подразделения
Карта подразделения или повторного подразделения представляет собой карту типа обследования, которая изображает или отмечает расположение участков и связанных с ними государственных или частных автомагистралей, сервитутов и земель и предназначена для представления в соответствующие регулирующие органы. Эта карта должна соответствовать требованиям Обследования имущества или должна быть представлена вместе с Обследованием имущества.
Требования к памятникам, изложенные в статье III настоящего регламента, не применяются к частям оригинального обзора.
Карта сервитута
Карта сервитута — это карта типа исследования, которая изображает и отмечает положение существующего или предполагаемого сервитута относительно:
граница памятника найдена или установлена
улучшений и особенностей, включая как минимум: жилые дома, амбары, гаражи, навесы, подъездные пути, дороги, наземные коммуникации, видимые водоемы, заборы, стены, живые изгороди, дворы и бассейны
другие учетные сервитуты и видимые доказательства их использования
неразрешенных конфликтов с описаниями документов и картами
Все видимые посягательства должны быть изображены или отмечены на нем. Для границ, пересекаемых линиями сервитута, геодезист должен указать используемую категорию определения границы.
Разбивка границ
Разбивка границ – это тип съемки, при котором отмечается или фиксируется физическое положение углов или линий собственности.
Инспектор должен выдать подписанное и запечатанное письмо или эскиз с указанием установленных памятников или указателей и указанием используемой категории определения границы. Никакие другие функции не должны быть изображены.
Дополнительные требования
Все виды обследования, перечисленные в подразделах настоящего раздела, должны соответствовать следующим требованиям:
Классы горизонтальной точности AA, A-1 или A-2, как определено в подразделе (b) раздела 20-300b-11 настоящих правил
Требования к расположению онументации или маркера, как определено в Разделе 20-300b-13 настоящих правил
требования к исследованиям, определенные в статье IV настоящего регламента
расстояния вдоль границ или линий сервитута, выраженные с точностью до 0,01 фута (0,003 метра), за исключением случаев, когда указанные линии нерегулярны и постоянно меняются, как, например, вдоль водоема
направлений, определяемых углами, пеленгами или азимутами, вдоль границ или линий сервитута, выраженных с точностью до 10 секунд для класса А-2 и с точностью до 1 секунды для классов АА и А-1, за исключением случаев, когда указанные линии нерегулярны и постоянно меняются , как вдоль водоема
изогнутых линий, определяемых центральным углом, радиусом, длиной дуги и касательной.
Для кривых, которые не касаются прилегающего курса, должна быть указана информация, необходимая для их воспроизведения. Линии, которые являются радиальными, должны быть отмечены такв областях, где линии нерегулярны и постоянно меняются, как, например, вдоль водоема, меандра, связующих или контрольных линий, должно быть показано или отмечено положение точек, расположенных вдоль указанных линий, и позволять математическое замыкание карты
прилегающие объекты, идентифицированные последними опубликованными владельцами = имена (N/F, сейчас или ранее) или по карте районов и номерам участков
площади, указанные в акрах (гектарах) или квадратных футах (квадратных метрах)
все памятники или указатели, установленные или найденные, изображены и надлежащим образом описаны. При использовании контрольных знаков их положение относительно границы должно быть указано
.
на каждом листе изображена стрелка севера.
Привязка к сетке, магнитной или северной с другой карты должна быть отмечена. Если магнитный, дата чтения должна быть отмечена
Категории определения границ
Категория, используемая при определении мнений собственности/границы для всех типов съемок, перечисленных в подразделах (b) и (c) этого раздела, должна быть указана в заголовке или примечаниях на карте , и должен быть одним из следующих:
Первая съемка:
Первая съемка – это съемка существующих границ собственности, когда геодезист не нашел карту или другой документ о предмете собственности, такой как метеосводка. и описание границ, которое представляет собой профессиональное мнение предыдущего геодезиста. Если геодезист нашел предыдущую съемку, текущая съемка по определению является повторной съемкой.
Повторное обследование:
Повторное обследование – это обследование границ участка, проводимое после того, как геодезист обнаружил предварительное обследование объекта.
После оценки предыдущего обследования в контексте полевых и учетных данных подготавливается повторное обследование. Повторный опрос может согласиться или не согласиться с предыдущим опросом. Если геодезист обнаружил предварительное обследование объекта недвижимости и, по профессиональному мнению инспектора, считает, что его достаточно для достоверности и обновления, используется термин Зависимое повторное обследование. Зависимое повторное обследование опирается на предыдущий опрос, обновляя его для отражения текущих условий.
Первоначальная съемка:
Первоначальная съемка – это съемка с указанием предполагаемых границ собственности или земельных участков. Должна быть указана Категория определения границ существующих границ.
Контрольная съемка
Горизонтальная контрольная съемка
Горизонтальная контрольная съемка – это тип съемки, при котором устанавливаются точки в горизонтальной системе координат, например широта и долгота, государственные, муниципальные или произвольные координаты.
Сеть горизонтального контроля должна соответствовать одному из классов горизонтальной точности, определенных в Разделе 20-300b-11.
Вертикальная контрольная съемка
Вертикальная контрольная съемка — это тип съемки, при котором устанавливаются реперные отметки относительно соответствующей вертикальной точки отсчета. Вертикальные измерения должны соответствовать одному из классов вертикальной точности, определенных в Разделе 20-300b-11.
Топографическая съемка
Топографическая съемка – вид съемки, при котором фиксируется конфигурация (рельеф) земной поверхности (земли) и расположение на ней естественных и искусственных объектов. Должны быть отмечены топографический и вертикальный классы точности, определенные в Разделе 20-300b-11 настоящих правил. Реперные отметки должны быть изображены или отмечены на всех освидетельствованиях класса Т-1, Т-2 и Т-3. Исходная точка съемки и контурный интервал должны быть изображены или отмечены. Если изображенные границы собственности не представляют мнение геодезиста о собственности/границах, должна быть примечание, четко указывающее на этот факт.
Обследование полосы отвода
Обследование полосы отвода – это тип обследования, который наносит на карту границы существующих или планируемых автомагистралей или сервитутов коммунальных сетей, включая картографирование участков, которые должны быть приобретены для такой цели (целей) , по отношению к установленному базовому уровню. Базовая линия, к которой относятся шоссе, сервитуты или линии сбора данных, должна быть линией траверса, осевой линией проекта или базовой линией строительства, любая из которых должна быть отмечена памятником или специально привязана к постоянным контрольным маркерам и должна соответствовать как минимум классу горизонтальной точности A- 2, как определено в Разделе 20-300b-11 настоящих правил, и требований к памятникам, определенных в статье III этих правил. Линии магистрали или сервитута могут быть линиями акта, оккупации, уведомления или приобретения; должны быть отмечены соответствующим образом; и может быть поставлен памятник. Объекты, изображенные на карте, могут быть результатом аэрофотограмметрических или полевых съемок, выполненных в целях планирования проекта, или могут быть собраны из различных источников.
Все соответствующие источники должны быть отмечены. Следует указать метод определения положения изображенных границ собственности, а также соответствующий класс горизонтальной точности.
Общая съемка местоположения
Общая съемка местоположения — это тип съемки, который приблизительно изображает участок земли и отдельные улучшения на основе зарегистрированных исследований и компиляции данных, дополненных ограниченными полевыми измерениями. Конкретное содержание должно быть согласовано между заказчиком и геодезистом и четко обозначено на карте. Этот тип обследования не должен использоваться для подготовки описания имущества для передачи. Если изображенные границы собственности не представляют мнение геодезиста о собственности/границах, должна быть примечание, четко указывающее на этот факт. Примечание № 1 к карте должно включать: «Эта карта была подготовлена на основе записей исследований, других карт, ограниченных полевых измерений и других источников. факты, которые могут быть раскрыты указанными опросами».
План накопления данных
План накопления данных — это тип плана, который отображает собранные и коррелированные данные определенного типа (или типов) в данной области. Планы накопления данных могут быть отображены на заранее подготовленной карте. Должны быть отмечены классы горизонтальной или вертикальной точности, использованные при подготовке. Если изображенные границы собственности не представляют мнение геодезиста о собственности/границах, должна быть примечание, четко указывающее на этот факт.
Компиляционный план
Компиляционный план — это тип плана, основанный на исследованиях земельной документации и других источниках информации, который показывает примерный размер и форму земельного участка. Этот план может быть получен только из записей, а не в результате полевых исследований или измерений, выполненных геодезистом. Точность этого плана может варьироваться в зависимости от качества данных, на основе которых он был составлен.
Все соответствующие используемые источники должны быть отмечены в плане. Если указанный план создан для конкретной цели, эта цель должна быть отмечена. Примечание № 1 к этому плану должно включать: «Этот план был составлен на основе других карт, записей исследований или других источников информации. Его не следует рассматривать как полученный в результате полевых исследований, и он может быть изменен. как может показать точное полевое исследование».
Услуги по разбивке при строительстве
Услуги по разбивке при строительстве – это виды съемок, которые контролируют горизонтальное или вертикальное положение предлагаемых улучшений. Нет необходимости готовить план; однако документация о расположении точек должна вестись как постоянная запись.
Географическая информационная система (ГИС) Земельная информационная система (ЛИС)
Типы систем, используемых для информационных банков данных на основе пространственных требований. Ссылаемся на публикацию Федерального комитета геодезического надзора «Многоцелевые наземные информационные системы: Путеводитель».

В первую очередь это касается цветовой окраски: на карте цвета используются для отображения высотности, а на плане – для обозначения отдельных объектов рельефа, таких как горы или леса.
Помимо непосредственного изображения, имеющегося на участке ручья, озера или иного гидрологического ресурса, на план наносится его название, а также направление течения. При помощи условных обозначений наносится и его скорость.
Содержит дополнительные сведения, в том числе адрес земельного надела, масштаб, в котором выполнен чертеж и данные геодезического специалиста, производившего измерения и составившего план;
При перенесении сферичной поверхности на плоскость неизбежны искажения, поэтому невозможно составить карту с постоянным масштабом. Получить представление об этом легко при зрительном сравнении контуров континентов на карте и на глобусе.
На крупных масштабах точность и детализация должны быть выше


Первоначальный план проштампован инженером.
р.
Обратитесь к разделу 20-300b-14 для описания приемлемых памятников. От этого требования можно отказаться только по письменному соглашению между геодезистом и заказчиком и с отметкой на карте, что все найденные или установленные памятники изображены.
Для кривых, которые не касаются прилегающего курса, должна быть указана информация, необходимая для их воспроизведения. Линии, которые являются радиальными, должны быть отмечены так
Привязка к сетке, магнитной или северной с другой карты должна быть отмечена. Если магнитный, дата чтения должна быть отмечена