Содержание
Исполнительная съемка (здания, сооружения, инженерных коммуникаций) — Инженерно-геодезические изыскания — Услуги Компании
Исполнительная съемка — это завершающая стадия строительства, которая заключается в контроле за качеством того или иного отдельного этапа строительно-монтажных работ, поэтому исполнительная съемка уже возведенных зданий, сооружений и инженерных коммуникаций представляет собой геодезические измерения строительных конструкций, проводимые с помощью высокоточных электронных приборов.
Цель исполнительной съемки — определить точность вынесения проекта в натуру и выявить все отклонения от проекта, допущенные в процессе строительства. Это достигается путем определения фактических координат характерных точек построенных зданий и сооружений.
Исполнительная съемка производится на основании проектных документов, предоставленных заказчиком, при этом эксперт-геодезист производит не просто точный замер конструкций и их посадки на местности, но и сравнение с проектными данными для выявления возможных расхождений, кроме того выясняет точность перенесения проекта в натуру.
Именно исполнительная съемка позволяет проверить точность совпадения с проектом, именно она подтверждает соответствие возведенного здания или сооружения строительным нормам и правилам (СНиП) и только по результатам исполнительной съемки можно действительно определить качество проведенного строительства. Безусловно, исполнительная съемка проводится в период завершения строительства, т.е. до сдачи объекта в эксплуатацию.
Исполнительная съемка позволяет проконтролировать результаты строительства и выявить все отклонения от проекта. Для этого, одновременно со съемкой, экспертом-геодезистом ведется журнал отступлений от заданного проекта, в котором отмечаются отклонения возведенного здания или сооружения от проекта. Документальный материал, получаемый в процессе геодезических работ, используется при проектировании фасадов и остекления зданий, контроле точности, подсчетах объемов выполненных строительных работ. Исполнительные схемы составляются на основании требований действующих нормативных документов, а также с учетом требований органов государственного надзора, авторского надзора проектной организации, а также технадзора заказчика.
Правила оформления исполнительных чертежей отражены в ГOСТ и СНиП.
Кроме того, примечательно и то, что исполнительная съемка может выполняться, как отдельно, так и в составе геодезических работ по обеспечению строительства.
Результатом исполнительной съемки зданий и сооружений является исполнительный чертеж.
Таблица производственного бизнес-процесса «Исполнительная съемка (здания, сооружения, инженерных коммуникаций)»
|
№п/п
|
Этап работ
|
Ответственный за выполнение работ
|
Требования к входным данным
|
Требования к выходным данным
|
Срок выполнения работ
|
|
1
|
2
|
3
|
4
|
5
|
6
|
|
Запрос, изучение и анализ исходных данных (проектная документация, картматериалы и прочее)
|
Инженер-геодезист
|
— Дело по заказу
— Проектная документация
|
— Дело по заказу
— Сформированная в результате анализа последовательность действий для исполнительной съёмки
|
3-5 рабочих дней
|
|
Проведение съемки
|
Инженер-геодезист
|
— Дело по заказу;
— Сформированная в результате анализа последовательность действий для исполнительной съёмки
|
— Дело по заказу;
— Результаты измерений
|
1-3 рабочих дня
|
|
Камеральная обработка полученных данных
|
Инженер-геодезист/Инженер-картограф
|
— Дело по заказу;
— Результаты измерений
|
— Дело по заказу;
— Точки и абрисы
|
1 рабочий день
|
|
Обработка съёмки в ПО (векторизация по абрисам)
|
Инженер-геодезист/Инженер-картограф
|
— Дело по заказу;
— Точки и абрисы
|
— Дело по заказу;
— Исполнительный чертеж
|
1 рабочий день
|
|
|
:ИТОГО
|
7-10 рабочих дней
| |||
Исполнительная съемка зданий и сооружений: цена в Москве
Исполнительная съемка:от 16000 р.
Исполнительная съемка – для чего осуществляется процедура?
Исполнительная съемка – особая геодезическая процедура, базовым назначением которой является выполнение контроля при возведении конкретных объектов. Также, такие геодезические работы дают возможность проанализировать соответствие объекта с планом, и вовремя обнаружить существующие отклонения от проекта. Наша специализированная компания «Московская геодезия» выполняет все виды геодезической съемки, включая исполнительную. В ходе специальных исследований применяются только передовые методики, технологии и самое современное оборудование, позволяющее получать точные сведения.
После того, как работы завершены, наши опытные геодезисты подготавливают чертежи, являющиеся официальным документом, необходимым для принятия решения о продолжении строительных работ. Если профильные сотрудники нашей фирмы обнаружили какие-то расхождения с проектом, то все неточности сначала устраняются рабочими, и только потом может быть реализован переход к следующему этапу строительных мероприятий.
В зависимости от габаритов здания либо сооружения, работы реализуются в полном соответствии с требованиями заказчика, прописанными в техническом задании.
Найденные неточности и отступления от проектных материалов непременно вносятся нашими геодезистами в журнал.
Когда проводится исполнительная съемка?
Услуга осуществляется неоднократно: для мониторинга соответствия фактических данных заданным в проектных материалах показателям исследования проводятся до начала возведения, на промежуточных стадиях и тогда, когда объект уже сдан в эксплуатацию.
Инженерами-геодезистами нашей организации, реализуется исполнительная съемка:
- котлована и нижнего конструктивного элемента;
- фасадов конструкций;
- автомобильных, железных путей и иных линейных объектов;
- коммуникационных линий (выполняется до того, как проложенные сети будут засыпаны землей).
При строительстве контрольно-исполнительная съемка реализуется нашими специалистами на стадии контурирования котлована, а последняя процедура проводится уже на стадии интерьерного планирования.
Кроме того, к исполнительной процедуре также можно отнести пространственную съемку, позволяющую измерить размер земельных масс, контуров фасадной части объекта и выполнить мероприятия по обмеру внутренних конструкций.
Полнота и точность исполнительной съемки напрямую зависят от требований заказчика, предъявляемых и итоговому отчету.
Исполнительные съемки возводимых зданий и сооружений: нюансы при выполнении
Исполнительная съемка земельного участка выполняется штатными специалистами нашей организации на этапе укладки коммуникационных сетей. В процессе работ специалисты используют передовое оборудование, позволяющее с большой точностью произвести замеры. Реализуется съемка в местах поворотов труб и характерных точках. Также у нас могут быть заказаны съемки канализационных сетей, теплосети, водостока.
Когда работы завершены, по ее итогам оформляется исполнительная схема, на базе которой в последующем составляется исполнительный чертеж земучастка. Именно этот документ является результатом проведения таких работ.
Он передается заказчику в требуемом формате — электронном или бумажном.
Профессиональная выполненная нами исполнительная съемка участка поможет заказчику технически и экономически обосновать строительства определенного строения и прокладку инженерных линий
Исполнительные съемки в геодезии: правила выполнения
Исполнительные съемки в геодезии реализуются нашими опытными сотрудниками, на основе проектной документации. От точности выполнения таких работ во многом зависит конечный результат строительства, поэтому крайне важно, чтобы процедура проводилась согласно установленным нормам.
В соответствии с общепринятыми правилами СНиП, контрольная исполнительная съемка реализуется нашими специалистами по приемке работ по строительству определенного строения, а также инженерных сетей. Это требуется для установления соответствия объекта предоставленным подрядчиком исполнительным чертежам. Все сведения о проведении строительных мероприятий важно ежедневно вносить в специальные журналы по сварочным услугам, монтажу конструкции и выполнению монтажных соединений.
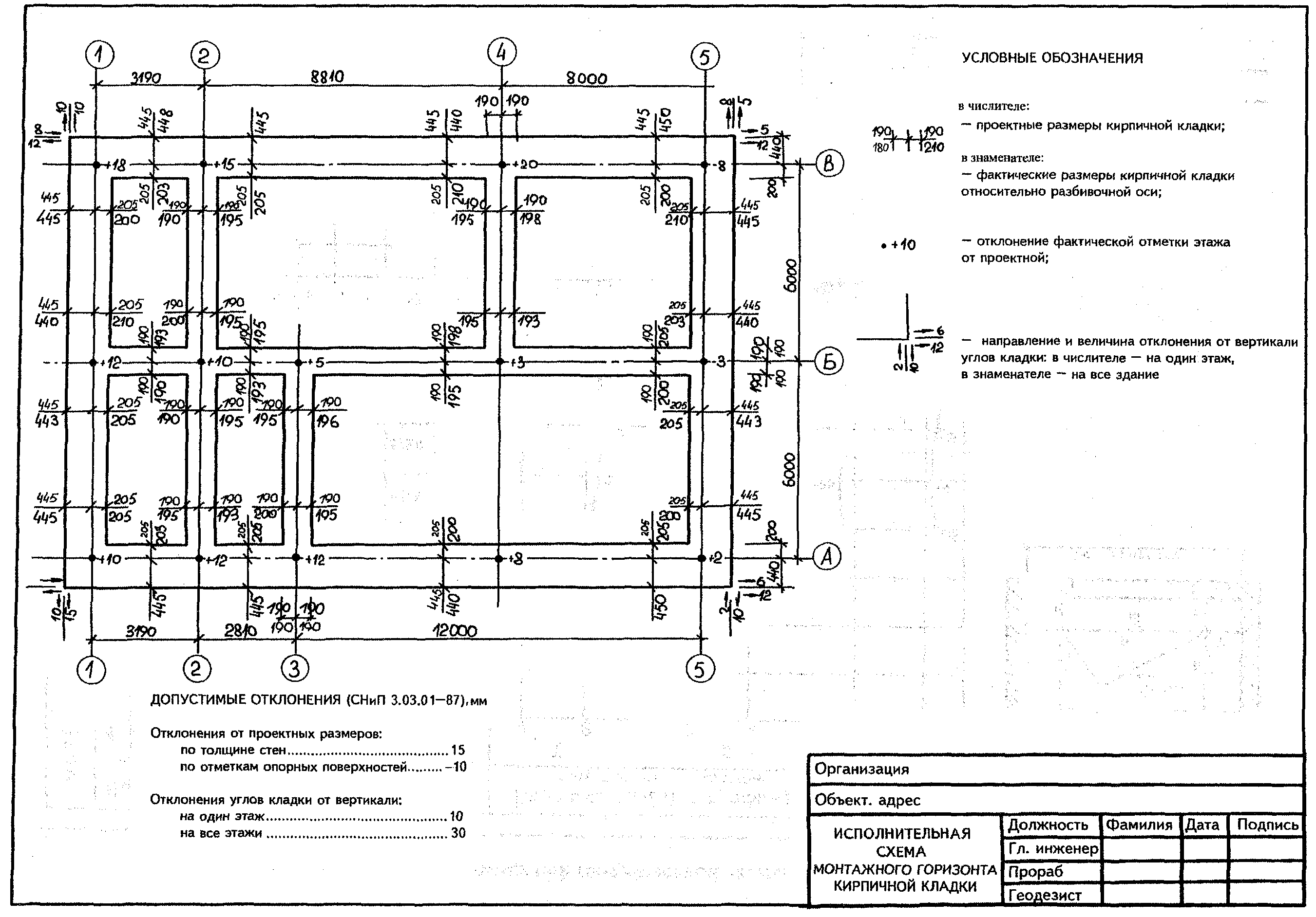
Учитывая то, что в ходе строительства многие конструктивные элементы в итоге оказываются скрытыми, текущая контрольная исполнительная съемка является эффективным инструментом для фиксирования осуществленных скрытых работ. Именно поэтому наши геодезисты большое внимание уделяют тем конструктивным элементам, которые в дальнейшем проверить будет невозможно (кирпичная кладка до оштукатуривания, перекрытия для обустройства бетонной стяжки и пр.)
Геодезическим обоснованием мероприятий для оформления исполнительного генплана, считаются пункты и реперы разбивочных сетей.
Результат исполнительной съемки лестничного марша: точная 3D-модель для проектирования стеклянной шахты лифта
Какой будет стоимость исполнительной съемки?
Стоимость исполнительной съемки для двух разных строений не может быть одинаковой – смета рассчитывается нашими экспертами только после ознакомления с техническим заданием в индивидуальном порядке. К тому же, цена исполнительной съемки зависит от сложности будущей конструкции, цели исследовательских мероприятий, количества задействованной при съемке техники, масштаба проекта, удаленности стройплощадки и иных факторов.![]()
По итогам работ, заказчик получает от сотрудников нашей компании отчетные документы, включая акт исполнительной съемки, исполнительные схемы и чертежи, генплан.
Цена исполнительной съемки рассчитывается согласно техгического задания и согласовывается с клиентом до начала геодезических работ на участке или объекте.
Определение разрешений на строительство Стр.
Этот Javascript позволяет изменять размер страницы в IE до минимальной ширины в 853 пикселя и не меньше.
Вы здесь:
Census.gov ›
Бизнес и промышленность ›
Строительство >
Разрешения на строительство ›
Определения
Пропустить навигацию к началу страницы
Этот Javascript выделяет, в каком разделе основной навигации вы находитесь, и отменяет ссылку на его URL.
Связанные ссылки
- Бизнес и промышленность
- Производственный сектор
- Экономическая перепись
- Экономические показатели
- Строительство
- Новое жилое строительство
- Новые жилые продажи
- Характеристики нового жилья
- Расходы на строительство
- Промышленный корпус
2 |
А |
Б |
С |
Д |
Е |
Ф |
г |
Н |
я |
Дж |
К |
л |
М |
Н |
О |
П |
Вопрос |
Р |
С |
Т |
У |
В |
Вт |
Х |
Y |
Z
2 Вернуться к началу
- 20 000 – серия
- См.
Вселенная.
A Вернуться к началу
- Авторизация
- Акт местной юрисдикции об утверждении строительных проектов путем выдачи разрешений на строительство или зонирование.
B Вернуться к началу
- Разрешение на строительство или зонирование
- Разрешение местной юрисдикции на осуществление строительного проекта. Отметим, что не во всех районах страны требуется разрешение на строительство.
C Вернуться к началу
- Доверительный интервал
- Оценка выборки и оценка ее стандартной ошибки позволяют построить интервальные оценки с заданной достоверностью того, что интервал включает средний результат всех возможных выборок одинакового размера и структуры. Для иллюстрации, если все возможные выборки были обследованы практически в одинаковых условиях и оценки рассчитаны по каждой выборке, то:
- Приблизительно 68 процентов интервалов от одной стандартной ошибки ниже оценки до одной стандартной ошибки выше оценки будут включать среднее значение всех возможных выборок.

- Приблизительно 90 процентов интервалов от 1,6 стандартных ошибок ниже оценки до 1,6 стандартных ошибок выше оценки будут включать среднее значение всех возможных выборок.
Таким образом, для конкретной выборки можно с заданной уверенностью сказать, что в построенный интервал входит среднее значение всех возможных выборок.
- Приблизительно 68 процентов интервалов от одной стандартной ошибки ниже оценки до одной стандартной ошибки выше оценки будут включать среднее значение всех возможных выборок.
D Наверх
- Отдел
- В этой статистике используются стандартные географические подразделения переписи. Их можно найти по адресу: www2.census.gov/geo/pdfs/maps-data/maps/reference/us_regdiv.pdf
E Вернуться к началу
- Оценки с импутацией
Если отчет не получен из отдела выдачи разрешений на строительство, данные об отсутствующих единицах жилья либо получаются с использованием разрешений, перечисленных в Обследовании строительства Бюро переписи населения (SOC), либо импутируются. Данные SOC доступны лишь примерно для 900 разрешительных органов.
Для мест, не входящих в SOC, используются вменения. Расчеты основаны на допущении, что отношение количества разрешений за текущий месяц или год к общей годовой сумме за предыдущий год должно быть одинаковым для отчитывающихся и неотчитывающихся мест.Данные, помеченные как «Оценки с вменением», включают вмененные данные, а также данные, представленные респондентом или SOC.
F Вернуться к началу
- Коды штатов и округов FIPS
- Федерального стандарта обработки информации (FIPS) однозначно идентифицируют штаты, округа и другие связанные объекты местоположения. Теперь они более правильно называются кодами ANSI для Американского национального института стандартов. Подробности см. на веб-сайте ANSI: www.census.gov/programs-surveys/geography/geographies/reference-files.All.html.
- Сноска
- Имеются сноски, поясняющие изменения в разрешении на строительство для отдельных муниципалитетов. В большинстве случаев они уточняют фактический географический охват бюро разрешений, что не всегда очевидно из названия места.

Коды
G Вернуться к началу
H Вернуться к началу
- Блок корпуса
Жилищная единица, как она определена для целей настоящих данных, представляет собой дом, квартиру, группу комнат или отдельную комнату, предназначенную для использования в качестве отдельных жилых помещений. Отдельными жилыми помещениями считаются помещения, в которых жильцы проживают отдельно от других лиц в здании и к которым имеется прямой доступ снаружи здания или через общий холл.
В соответствии с этим определением каждая квартира в многоквартирном доме считается одной единицей жилья. Жилые единицы, в отличие от производимых (передвижных) домов по коду HUD, включают обычные единицы, построенные на месте, сборные, панельные, секционные и модульные единицы.
Статистические данные о единицах жилья также не включают групповые помещения (такие как общежития и меблированные комнаты), временное жилье (например, временные гостиницы, мотели и туристические дворы), перемещенные или перемещенные здания и единицы жилья, созданные в существующей жилой или нежилой структуре.

Квартиры в домах престарелых считаются жилыми единицами, однако единицы в домах престарелых не считаются жилыми единицами.
- «HUD-код» Изготовлено (мобильное) Главная
Изготовленный дом определяется как передвижное жилище шириной 8 футов или более и длиной 40 футов или более, предназначенное для буксировки на собственном шасси, с транспортным механизмом, встроенным в устройство, когда оно покидает завод, и без необходимости постоянный фундамент. Эти дома построены в соответствии со строительными нормами Министерства жилищного строительства и городского развития США (HUD).
Статистика по готовым домам исключена из статистики нового жилого строительства. Их можно найти на веб-сайте Обследования промышленного жилья по адресу www.census.gov/programs-surveys/mhs.html.
I Вернуться к началу
J Вернуться к началу
K Вернуться к началу
L Вернуться к началу
M Вернуться к началу
- Изготовленный дом
- См.
«HUD-код» Изготовленный дом. - Агломерации
- Названия и определения городских агломераций (MA), которые состоят из основных статистических агломераций (CBSA), соответствуют определениям, определенным Административно-бюджетным управлением Администрации президента по состоянию на декабрь 2003 г. Дополнительную информацию о мегаполисах можно найти на сайте www.census.gov/programs-surveys/metro-micro.html.
- Передвижной дом
- См. «HUD-код» Изготовленный дом.
- Многоквартирный дом
- Жилые дома, состоящие из блоков, построенных один над другим и построенных рядом друг с другом, которые не имеют стены от земли до крыши и/или имеют общие помещения (например, чердак, подвал, котельную, водопровод и т. )
N Вернуться к началу
- Новое жилое строительство
Категория статистики под названием «Новое жилищное строительство» состоит из данных о пяти этапах проекта жилищного строительства: (1) единицы жилья, строительство которых разрешено на основании разрешения на строительство или зонирование; (2) жилищные единицы, строительство которых разрешено, но еще не начато; (3) введены в эксплуатацию жилые дома; (4) строящиеся жилые дома; и (5) готовых жилых единиц.

Новая статистика жилищного строительства не включает групповые помещения (такие как общежития и меблированные комнаты), временное жилье (например, временные гостиницы, мотели и туристические дворы), промышленные (мобильные) дома с кодом HUD, перемещенные или перемещенные здания и жилье. единицы, созданные в существующем жилом или нежилом строении.
В новом здании, объединяющем жилые и нежилые площади, предпринимаются все усилия, чтобы включить жилые единицы в эту статистику, даже если основная функция всего здания нежилая.
Эта статистика включает только частные здания. Государственные жилищные единицы исключены из статистики. Квартиры в структурах, построенных частными застройщиками с частичным государственным субсидированием или которые после завершения строительства продаются местным органам государственного жилищного строительства в рамках программы HUD «Под ключ», классифицируются как частное жилье.
- Без учета сезонных колебаний
Данные с пометкой «Без сезонной корректировки» относятся к тому факту, что данные не скорректированы с учетом сезонности с помощью сезонной корректировки и не представлены в годовом исчислении.

Подробную информацию о сезонной корректировке можно найти по адресу: www.census.gov/topics/research/seasonal-adjustment.html.
O Наверх
- Один блок
- См. «Частный дом».
P Вернуться к началу
- Место выдачи разрешений
- Географический район, который выдает разрешения на строительство или зонирование для строительства жилых построек. Район может быть одним муниципалитетом или округом или комбинацией нескольких муниципалитетов.
- Частная
- Строения, не принадлежащие какому-либо федеральному правительству, правительству штата или местному правительству. Квартиры в структурах, построенных частными застройщиками с частичным государственным субсидированием или которые после завершения строительства продаются местным органам государственного жилищного строительства в рамках программы HUD «Под ключ», классифицируются как частное жилье.
- Государственное жилье
Государственное жилье — это жилое здание, принадлежащее федеральному, государственному или местному агентству.

Квартиры в строениях, построенных частными застройщиками с частичными государственными субсидиями или которые после завершения строительства продаются местным органам государственного жилищного строительства в рамках программы HUD «Под ключ», классифицируются как частное жилье.
Q Вернуться к началу
R Вернуться к началу
- Регион
- В этой статистике используются стандартные географические регионы переписи. Состояния, содержащиеся в каждом регионе, следующие:
Северо-восток Средний Запад Юг Запад Коннектикут Иллинойс Алабама Аляска Мэн Индиана Арканзас Аризона Массачусетс Айова Делавэр Калифорния Нью-Гэмпшир Канзас округ Колумбия Колорадо Нью-Джерси Мичиган Флорида Гавайи Нью-Йорк Миннесота Грузия Айдахо Пенсильвания Миссури Кентукки Монтана Род-Айленд Небраска Луизиана Невада Вермонт Северная Дакота Мэриленд Нью-Мексико Огайо Миссисипи Орегон Южная Дакота Северная Каролина Юта Висконсин Оклахома Вашингтон Южная Каролина Вайоминг Теннесси Техас Вирджиния Западная Вирджиния Карту регионов можно найти по адресу: www2.
census.gov/geo/pdfs/maps-data/maps/reference/us_regdiv.pdf. - Относительная стандартная ошибка (RSE)
- Расчетная стандартная ошибка, выраженная в процентах от расчетной суммы или доли, то есть расчетная стандартная ошибка, умноженная на 100, разделенная на оценку. Это также называется коэффициентом вариации (CV).
- Жилой дом
- Жилой дом – это здание, состоящее в основном из жилых единиц. В новом здании, объединяющем жилые и нежилые площади, предпринимаются все усилия, чтобы включить жилые единицы в эту статистику, даже если основная функция всего здания нежилая.
- Отчетные данные
- Данные, помеченные как «Отчетные данные», включают данные, полученные от респондента или из Обследования строительства Бюро переписи населения (SOC), но не включают вмененные данные.
S Вернуться к началу
- Годовая ставка с учетом сезонных колебаний
Сезонная корректировка — это процесс оценки и удаления сезонных эффектов из временного ряда для лучшего выявления некоторых несезонных особенностей, таких как основные тенденции и циклы деловой активности.
Процедуры сезонной корректировки оценивают эффекты, возникающие в один и тот же календарный месяц, с одинаковой величиной и направлением из года в год. В рядах, сезонные эффекты которых обусловлены главным образом погодой, сезонные факторы представляют собой оценки средних погодных эффектов для каждого месяца. Сезонная корректировка не учитывает аномальные погодные условия или годовые изменения погоды. Сезонные факторы – это оценки, основанные на настоящем и прошлом опыте. Будущие данные могут показать другую картину.Большинство сезонно скорректированных рядов показаны как сезонно скорректированные годовые коэффициенты (SAAR). Годовая ставка с учетом сезонных колебаний представляет собой месячное значение с учетом сезонных колебаний, умноженное на 12. Преимущество годовой ставки заключается в том, что можно не только сравнивать одну месячную оценку с другой; месячные данные также можно сравнить с годовым итогом. Годовой показатель с учетом сезонных колебаний не является ни прогнозом, ни прогнозом; скорее это описание количества разрешений на строительство, количества новых домов, завершенных домов или продаж новых домов в конкретном месяце, для которого они рассчитаны.

Данные с пометкой «Без сезонной корректировки» относятся к тому факту, что данные не скорректированы с учетом сезонности с помощью сезонной корректировки и не представлены в годовом исчислении.
Подробную информацию о сезонной корректировке можно найти по адресу: www.census.gov/topics/research/seasonal-adjustment.html.
- Частный дом
Статистические данные на одну семью включают полностью отдельные, полуотдельные (полупристроенные, бок о бок), рядные дома и таунхаусы. В случае пристроенных блоков каждый должен быть отделен от соседнего блока стеной от земли до крыши, чтобы классифицировать его как строение для одной семьи. Кроме того, эти единицы не должны иметь общих систем отопления/кондиционирования воздуха или коммунальных услуг.
Квартиры, построенные одна над другой, и те, которые построены бок о бок, не имеют стены от земли до крыши и/или имеют общие помещения (например, чердак, подвал, котельную, водопровод и т.
д.), не являются включаются в статистику односемейных.- Стандартная ошибка
- Мера вариации оценок по всем возможным выборкам; мера точности, с которой оценка конкретной выборки приближается к средним результатам всех возможных выборок; квадратный корень выборочной дисперсии.
- Структура, Тип
Статистика по типу конструкции относится к структурным характеристикам здания.
Категория одноквартирного дома – это дом на одну семью. Он включает в себя полностью отдельные, полуотдельные (полупристроенные, бок о бок), рядные дома и таунхаусы (см. «Дом на одну семью».)
Многоквартирные дома классифицируются по количеству жилых единиц в здании.
Данные сведены в таблицу для 2 юнитов, 3 и 4 юнитов вместе взятых и 5 или более блочных структур.
T Вернуться к началу
- Корпус под ключ
- Квартиры в строениях, построенных частными застройщиками с частичным государственным субсидированием или продаваемых после завершения строительства местным органам государственного жилищного строительства.

U Наверх
- Нескорректированный
- Для данных штата: без сезонной поправки; Для данных MSA: без сезонной корректировки и без взвешивания.
- Universe (Опрос разрешений на строительство)
Для оценки единиц жилья, получивших разрешение от Обследования разрешений на строительство, «Вселенная» определяется как все уникальные бюро разрешений на момент выбора последней выборки. «Уникальные» разрешительные органы — это те юрисдикции, которые не приводят к двойной отчетности. Например, если город выдает разрешения на зонирование, а его округ выдает разрешения на строительство (включая разрешения на строительство зданий в городе(), во вселенную включается только офис округа. Числа, связанные с различными вселенными (например, вселенной на 20 000 мест( округлены для удобства идентификации:
1959 г. Вселенная включала около 10 000 пунктов выдачи разрешений и использовалась с января 1959 г. по декабрь 1962 г.
1963 г. Вселенная включала около 12 000 пунктов выдачи разрешений и использовалась с января 1963 г. по декабрь 1966 г.
1967 г. Вселенная включала около 13 000 пунктов выдачи разрешений и использовалась с января 1967 г. по декабрь 1971 г.
1972 Вселенная включала около 14 000 пунктов выдачи разрешений и использовалась с 19 января.72 по декабрь 1977 г.
1978 г. Вселенная включала около 16 000 пунктов выдачи разрешений и использовалась с января 1978 г. по декабрь 1983 г.
1984 г. Вселенная включала около 17 000 пунктов выдачи разрешений и использовалась с января 1984 г. по декабрь 1993 г.
1994 г. Вселенная включала около 19 000 пунктов выдачи разрешений и использовалась с января 1994 г. по декабрь 2003 г.
2004 Вселенная включала около 19 300 пунктов выдачи разрешений и использовалась с января 2004 г. по декабрь 2014 г.
2014 Universe включает около 20 100 мест выдачи разрешений и используется с января 2014 года.
В Вернуться к началу
- Оценка
- Оценка представляет собой оценочную стоимость жилого строения, указанную в разрешении на строительство. Если стоимость не указана в разрешении, мы принимаем оценки от должностного лица разрешения.
W Вернуться к началу
X Вернуться к началу
Y Вернуться к началу
Z Наверх
Повторная сертификация
Что произойдет, если здание не представит требуемую повторную сертификацию?
Если владелец собственности не может получить повторную сертификацию в течение требуемого периода времени, недвижимость передается в Секцию небезопасных конструкций и возбуждается исполнительное дело. После этого Unsafe Structures отслеживает процесс повторной сертификации, включая объявление здания небезопасным; выдача Уведомления о нарушении; обращение в Совет по небезопасным конструкциям; а также проверка сроков исполнения Распоряжений Совета директоров и ремонтных работ, распоряжений об освобождении, взыскания расходов на исполнение и любых других действий, которые будут сочтены необходимыми.
Для получения дополнительной информации о небезопасных сооружениях отправьте электронное письмо [email protected] или позвоните по телефону 786-315-2424.
Как узнать, есть ли у объекта повторная сертификация здания?
В настоящее время в округе Майами-Дейд насчитывается 35 муниципалитетов, и строительный чиновник каждого муниципалитета обладает юрисдикцией в отношении выдачи разрешений на строительство, проверок и повторной сертификации. Любые вопросы, касающиеся требований и спецификаций повторной сертификации, следует направлять в конкретное агентство, которое связалось с вами.
Если ваша собственность находится в некорпоративном округе Майами-Дейд (лист начинается с 30), вы можете получить доступ к случаям повторной сертификации, используя Портал повторной сертификации.
Вы можете искать в Системе поддержки зданий записи, касающиеся нарушений строительных норм и правил в некорпоративном округе Майами-Дейд.
Чтобы получить дополнительную информацию о небезопасных сооружениях, позвоните по телефону 786-315-2424 или напишите по электронной почте [email protected].
Как я могу получить копию отчета?
Вы можете запросить общедоступный поиск записей по объекту или отправить электронное письмо по адресу [email protected].
Что делать, если у меня есть опасения по поводу моего здания?
Владельцы недвижимости и ассоциации кондоминиумов, сомневающиеся в целостности своей высотной конструкции, могут поручить инженеру-строителю, даже если они еще не были уполномочены сделать это в рамках официального процесса повторной сертификации своих муниципалитетов, для проведения тщательной проверки конструкции.
Куда я могу подать жалобу на мою ассоциацию за то, что она не поддерживает здание?
Клиенты, у которых есть жалобы или опасения по поводу их ТСЖ/управляющей компании, могут обратиться в Департамент делового и профессионального регулирования штата (DBPR) — Отдел кондоминиумов, таймшеров и домов на колесах.
Вы можете подать жалобу онлайн или обратившись в их контактный центр по телефону 850-487-1395.
Что делать, если в отчете указано, что требуется ремонт?
Если необходим ремонт, перед повторной сертификацией здания необходимо выполнить надлежащие разрешительные процедуры. Для получения дополнительной информации посетите раздел «Общие разрешения и сертификаты», позвоните по телефону 786-315-2100 или напишите по электронной почте [email protected].
Кто может проводить повторную сертификацию зданий (Milestone) для пороговых зданий в округе Майами-Дейд?
Любое четырехэтажное здание и выше, а также другие здания, классифицируемые как пороговые, должны быть осмотрены отдельно квалифицированным инженером-строителем и инженером-электриком, имеющим лицензию Флориды, следующим образом:
Кодекс округа Майами-Дейд Глава 8 Раздел 8-11(E)(ii) частично указывает, что инженер-строитель должен предоставить: заявление о том, что инженер является практикующим инженером-строителем и работал со зданиями, эквивалентными сертифицируемому зданию, и должно сопровождаться подтверждением структурной специализации инженера Государственного департамента коммерческого и профессионального регулирования (DPBR)».
Этот раздел кода требует соответствия квалификационным требованиям, состоящим из двух частей:
- Часть I: Предоставьте резюме (письмо о самоаттестации), в котором указывается опыт работы инженера со зданиями, эквивалентными сертифицируемому зданию.
- Часть II: Предоставьте подтверждение структурной специализации инженера Государственного департамента делового и профессионального регулирования.
- Признанный инженер-конструктор по специальностям:
- Инженер, сдавший структурный экзамен I (8 часов), ИЛИ
- Инженер, сдавший гражданский экзамен плюс структурный II (8 часов), ИЛИ
- Инженер, прошедший 16-часовые структурные испытания, ИЛИ
- Инженер, получивший такую лицензию путем сдачи экзамена по структурной дисциплине до 1 марта 1993 г., ИЛИ
- Инженер, прошедший Программу признания строительных конструкций от Совета профессиональных инженеров Флориды в соответствии с правилом 61G15-20.0011 Административного кодекса Флориды, вступившим в силу 25 августа 2022 г.

- Признанный инженер-конструктор по специальностям:

Вселенная.
Для мест, не входящих в SOC, используются вменения. Расчеты основаны на допущении, что отношение количества разрешений за текущий месяц или год к общей годовой сумме за предыдущий год должно быть одинаковым для отчитывающихся и неотчитывающихся мест.

«HUD-код» Изготовленный дом.


census.gov/geo/pdfs/maps-data/maps/reference/us_regdiv.pdf.
Процедуры сезонной корректировки оценивают эффекты, возникающие в один и тот же календарный месяц, с одинаковой величиной и направлением из года в год. В рядах, сезонные эффекты которых обусловлены главным образом погодой, сезонные факторы представляют собой оценки средних погодных эффектов для каждого месяца. Сезонная корректировка не учитывает аномальные погодные условия или годовые изменения погоды. Сезонные факторы – это оценки, основанные на настоящем и прошлом опыте. Будущие данные могут показать другую картину.
д.), не являются включаются в статистику односемейных.

